RD Čebín

nadstandardní bydlení?

pohodlné podnikání?

Unikátnost tohoto domu je především v prostoru.

Doslova a dopísmene – sem se vejde jakýkoli Váš nápad.

Automatickými dveřmi se dostanete do krytého průjezdu, dalšími pak do dvora, kde je terasou krytý prostor pro parkování nebo venkovní dílnu. Dvůr může samozřejmě sloužit jako manipulační nebo skladovací prostor.

A všechno je jednoduše obrovské.

Byt v moderním horním patře má i s terasou 162 m2.

Jen obývák s kuchyní pak úctyhodných 58 m2.

Koupelnu pak třeba tvoří tři místnosti – samostatné WC, sprchový kout a místnost s vanou.

Čekáte, že takový dům bude mít i zahradu?

Sa – mo – zřej – mě!

Více jak 513 m2 vám nabídne květinové záhony, skleník, zahradní domek na potřebné nářadí, vzrostlé ovocné stromy, rozvedenou vodu na zalévání nebo lavičku s romantickým výhledem.

Je to pro vás málo?

Domluvím Vám dalších více jak 1.260 m2 zahrady s vinohradem. Za drobné zvýšení ceny, na jedné kupní smlouvě.

 

V přízemí pak nabízím další bonus:

je to další byt, který může ale stejně dobře posloužit jako zázemí malé domácí firmy, drobné spedice – a nebo jen rozšířit po rekonstrukci bydlení do královských rozměrů.

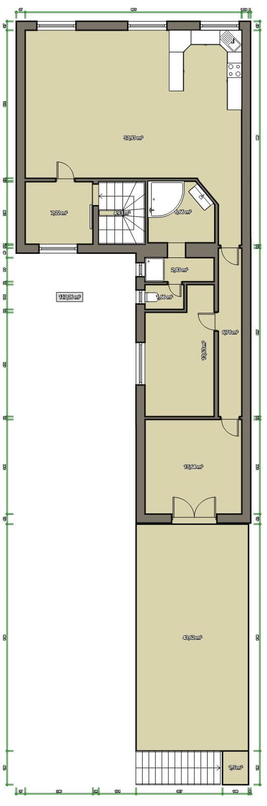
Podlahová plocha tohoto patra je více jak 106 m2.

PŮDORYS SPODNÍHO PATRA

PŮDORYS HORNÍHO PATRA

11.200.000,- kč

cena obsahuje provizi, právní služby a vůbec celý náš milý realitní servis 🙂

NENAŠLI JSTE, CO JSTE HLEDALI?

thank you rub against mommy’s leg oh it looks so nice out, please let me outside again the neighbor cat was mean to me please let me back inside. Hate dogs scoot butt on the rug yet meow meow you are my owner so here is a dead bird but use lap as chair.

[contact-form-7 id="303" title="Kontaktní formulář 1"]